ルーウェ東大泉 大泉学園の1LDK賃貸マンション!ルーウェ東大泉|保谷の賃貸ならハウステーション保谷店

TOPページ
物件検索
練馬区の賃貸情報一覧
ルーウェ東大泉 大泉学園の賃貸マンション

ルーウェ東大泉 大泉学園の1LDK賃貸マンション 

  • 17.6万円 / 管理費: - / 共益費: 10,000円
  • 間取り: 1LDK / 専有面積: 50.08m2
  • 敷金: 1ヶ月 / 礼金: 1ヶ月 / 保証金: - / 敷引・償却: --
【建物外観】  【間取】  【キッチン】  【居間・リビング】  【バス】  【寝室】  【玄関】  【ベランダ】  【トイレ】  【洗面所】  【収納】  【その他設備】  【セキュリティ】 
【建物外観】 
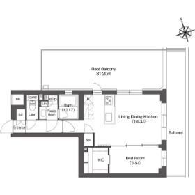
【間取】 
【キッチン】 
【居間・リビング】 
【バス】 
【寝室】 
【玄関】 
【ベランダ】 
【トイレ】 
【洗面所】 
【収納】 
【その他設備】 
【セキュリティ】 
  • 【建物外観】 
  • 【間取】 
  • 【キッチン】 
  • 【居間・リビング】 
  • 【バス】 
  • 【寝室】 
  • 【玄関】 
  • 【ベランダ】 
  • 【トイレ】 
  • 【洗面所】 
  • 【収納】 
  • 【その他設備】 
  • 【セキュリティ】 

【スタッフからのイチオシポイント】ルーウェ東大泉

新築・オートロック付きRCマンション!室内先進設備充実!ご来店せず現地でのお待ち合わせ、もしくは弊社スタッフによるスマホ・タブレットのTV通話での代理案内が可能です。
東京都練馬区東大泉2丁目【西武池袋線 大泉学園駅徒歩14分】にある1LDK賃貸マンションです。
新築築の6階建てのマンションで、お部屋は6階建ての5階部分です。
物件の広さは50.08m2で人気の1LDKです。
※お部屋のもっと詳しい内容や入居時期、諸条件のご相談など、ホームページには掲載が間に合わず載せきれていない情報もございます。
気になることが御座いましたらお気軽にメールにてお問い合わせください。
0120-980-636
保谷南口店
お問い合わせNO:RHS-S5881514AN

物件基本情報

所在地 東京都練馬区東大泉2丁目 
交通 西武池袋線 「大泉学園駅」 徒歩14分
西武池袋線 「石神井公園駅」 徒歩19分
種別 / 構造 マンション / RC造(鉄筋コンクリート造) 主要採光面 東南 所在階 / 階数 5階 / 6階
築年月 新築  間取り 1LDK( LDK14.3畳/洋室5.5畳 ) 専有面積 50.08m2

物件詳細情報

損保 要 16,550円/2年  更新料 あり 新賃料 1ヶ月 鍵交換代 -
駐車場 あり22,000円 近隣駐車場   契約期間
借家区分
2年 -
現況 未完成 入居可能日 相談 取引態様 媒介
保証人代行会社 仲介手数料 1.1ヶ月 バイク置き場
他初期費用

設備詳細情報

キッチン
  • システムキッチン
  • 対面式キッチン
  • グリル付
  • ガスコンロ
  • 3口以上コンロ
バス・トイレ
  • 給湯
  • バストイレ別
  • 追焚機能浴室
  • 脱衣所
  • 浴室乾燥機
  • 洗面所独立
  • 温水洗浄便座
  • 室内洗濯機置き場
住空間
  • 角部屋
  • 2面採光
  • バルコニー
  • 2面バルコニー
  • フローリング
  • 全居室フローリング
  • エアコン全室
  • エアコン3台
  • 玄関ホール
  • エアコン
設備・サービス
  • クロゼット
  • シューズボックス
  • ウォークインクロゼット
  • TVインターホン
  • オートロック
  • エレベーター
  • 宅配ボックス
  • 駐輪場
  • バイク置場
  • 防犯カメラ
  • 平面駐車場
  • CATVインターネット
  • CATV使用料不要
特 徴
  • 陽当り良好
条件・その他 ガス:都市 / 水道:公営 / 排水:下水 / 事務所:不可 / 2人入居:可 / 楽器相談:不可 / ペット:不可 / 子供:可
コメント 新築・オートロック付きRCマンション!室内先進設備充実!ご来店せず現地でのお待ち合わせ、もしくは弊社スタッフによるスマホ・タブレットのTV通話での代理案内が可能です。
備 考 保証会社必:初回に賃料と共益費(管理費)等合計の50%、月額保証料1%。 駐車場は2LDKにお住まいの方限定で契約可。バイク駐輪代3300円。

学区情報

小学校区 練馬区立大泉東小学校
(東京都練馬区)
中学校区 大泉中学校
(東京都練馬区)
情報更新日:2026年04月15日 次回更新予定日:2026年04月29日
※各種情報と差異がある場合は現況優先となります
※物件情報の学区情報について
当サイト物件情報に記載されております通学区域(学区)情報は、国土数値情報ダウンロードサービスが提供する小学校区データ【2016年度】及び中学校区データ【2016年度】を元に加工したものですので、記載情報が現在の学区域と異なる場合がございます。国土数値情報ダウンロードサービスのWEBサイト上で記述通り、データは必ずしも正確とは言えません。また、通学区域(学区)は毎年見直しの対象となりますので、そちらを踏まえ学区情報は参考としてご活用下さい。

こちらの物件の空室状況

部屋番号 賃料 共益費 / 管理費 間取り 専有面積 敷金 礼金 お気に入り 物件詳細
407 15万円 10,000円 / - 1LDK 43.46m2 1ヶ月 1ヶ月 お気に入り 物件詳細
406 15万円 10,000円 / - 1LDK 43.46m2 1ヶ月 0ヶ月 お気に入り 物件詳細
410 14.7万円 10,000円 / - 1LDK 43.46m2 1ヶ月 0ヶ月 お気に入り 物件詳細
409 14.7万円 10,000円 / - 1LDK 43.46m2 1ヶ月 0ヶ月 お気に入り 物件詳細
403 15.2万円 10,000円 / - 1LDK 44.4m2 1ヶ月 1ヶ月 お気に入り 物件詳細
514 17.6万円 10,000円 / - 1LDK 50.08m2 1ヶ月 1ヶ月 お気に入り 物件詳細
604 15.4万円 10,000円 / - 1LDK 43.46m2 1ヶ月 0ヶ月 お気に入り 物件詳細
605 15.4万円 10,000円 / - 1LDK 43.46m2 1ヶ月 0ヶ月 お気に入り 物件詳細
0120-980-636
保谷南口店
お問い合わせNO:RHS-S5881514AN

この物件に似た物件をチェック!

  • 賃貸マンション 18.3万円

    大泉学園駅 徒歩4分

    1LDK(40.63u)

    南向きの陽当り良好!嬉しい礼金・敷金無し!

  • 賃貸マンション 17.9万円

    大泉学園駅 徒歩4分

    1LDK(41.04u)

    駅近徒歩4分!オートロック・モニタ付インターホンのセキュリティ充実


閲覧した物件の履歴

閲覧した物件の一覧を見る

最近検索した条件一覧



気になったら今すぐ!カンタンお問合せ



お問合せ内容必須
【備考欄】
希望条件・来店希望日・その他質問がございましたらご記入ください。
お客様情報
お名前必須
連絡先必須 メールアドレス
電話番号



プライバシーポリシーを必ずご確認ください。内容に同意の上、確認画面へお進みください。




※ご記入いただいたメールアドレス宛てに、お問合せ内容の確認メールをお送りいたします。
※Yahoo!メールなどのフリーメールをご利用の場合、迷惑メールフォルダに入る場合があります。
 迷惑メールのフォルダ・設定等をご確認下さい。
 


▲ページのTOPへ戻る


お問合せはこちら

保谷南口店 0120-980-636

NEW ROOM

お店からのお知らせ

  • .。.:*・ホームページにようこそ☆.。.:*・ 

     

    〜年末年始休業のお知らせ〜

    弊社、誠に勝手ながら12月28日(日)〜1月4日(日)まで年末年始休業とさせていただきます。

    ご不便をおかけして申し訳ございませんが、何卒ご了承くださいますようお願い申し上げます。

    尚、1月5日(月)10:00より通常営業となります。

    新型コロナ対策として代理内見や弊社担当者にてテレビ通話通話等でのご紹介が可能です!

    ご来店いただかなくてもご内覧・IT重説・ご契約が可能ですので是非ご利用下さい。



    数ある不動産屋の中から、当社のホームページをご覧いただきありがとうございます。

    当店は地域密着!保谷・ひばりヶ丘を中心とした西武池袋線沿線の物件を多数取り揃えております。
    お部屋探しのことなら当社へお任せ下さい!
    当社スタッフが丁寧に対応させていただきます!

    また、他の不動産業者様でお部屋をご覧になりお悩み中のお客様、当社スタッフは出来る限りの諸条件のご相談も出来ます。
    お気軽にご相談くださいませ。

    当社の営業時間は午前10時より午後6時までとなっており、毎週火曜日・水曜日は定休日です。

    (1月から3月は第2・第4火曜日は営業しています)


    西武沿線へお引越しのお引越しのさいはぜひお立ち寄り下さい。スタッフ一同笑顔でお迎えいたします!

    物件等のお問い合わせはこちらからもどうぞ!
    0120-980-636
    hoya@sumaisagasi.jp
     


     

来店予約
お部屋探し依頼はこちら
LINEでお部屋探し

店舗情報
SHOP INFO

ハウステーション保谷店 0120-980-636

〒202-0012
東京都西東京市東町3-14-25

西武池袋線 保谷駅 南口徒歩2分

アクセスMAP
採用情報
不動産売却